

Ulica: | Kostolánska |
---|---|
Obec: | Madunice |
Okres: | Hlohovec |
Kraj: | Trnavský kraj |
Druh: | Objekty |
Typ: | Prenájom |
Typ objektu: | Sklad |
Ponuka na prenájom - atraktívna priemyselná nehnuteľnosť v obci Madunice, ktorá je ideálnym riešením pre logistické, skladové alebo výrobné prevádzky. Objekt ponúka výbornú dopravnú dostupnosť, moderné parametre a flexibilitu využitia.
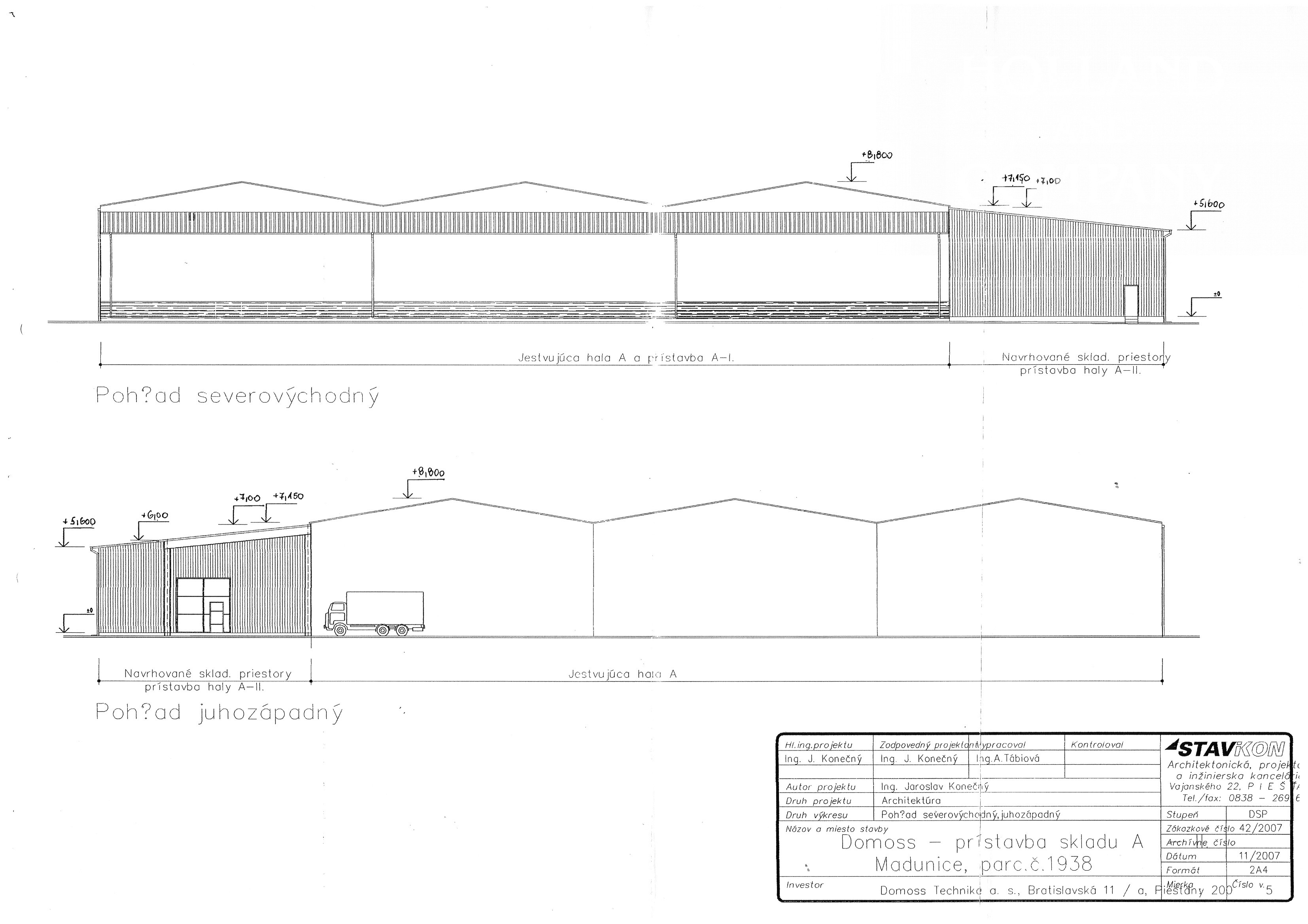
Základné parametre:
Celková vnútorná plocha: 5 164 m²
Pozemok: cca 5 000 m² (spevnené plochy, parkovanie, manipulačný priestor)
Výška haly: 5,5 m (prístavba) až 8,8 m (pôvodná hala)
Nosnosť podlahy: odhad 3–5 t/m² (vhodné aj pre ťažšie manipulačné technológie)
Pôdorys: v prílohe
Dopravná dostupnosť:
zjazd D1 Červeník – cca 7 minút
zjazd D1 Piešťany – cca 15 minút
Prístup: bezproblémový vjazd a parkovanie pre kamióny
Stav a využitie:
Objekt je momentálne využívaný na skladovanie elektroniky, polovica haly je prenajatá do konca roka. Priestor je pripravený na prispôsobenie podľa potrieb nového nájomcu.
Výhody lokality a objektu:
Strategická poloha medzi Bratislavou a Žilinou s rýchlym napojením na D1
Veľkorysé manipulačné plochy a parkovanie
Flexibilné dispozičné riešenie – možnosť prispôsobenia layoutu
Vysoká nosnosť podláh, vhodné aj pre ťažkú techniku alebo vysokoregalové skladovanie
V prípade záujmu Vám rada poskytnem detailné technické informácie, fotografie, pôdorysy a dohodneme si obhliadku objektu priamo na mieste.